Grav/Jar, Jar
Bjerkelundsveien 48B
- 29 500 000 + omk.
- I
- 260 m²
- I
- 6 Soverom
- I
- 3 Bad
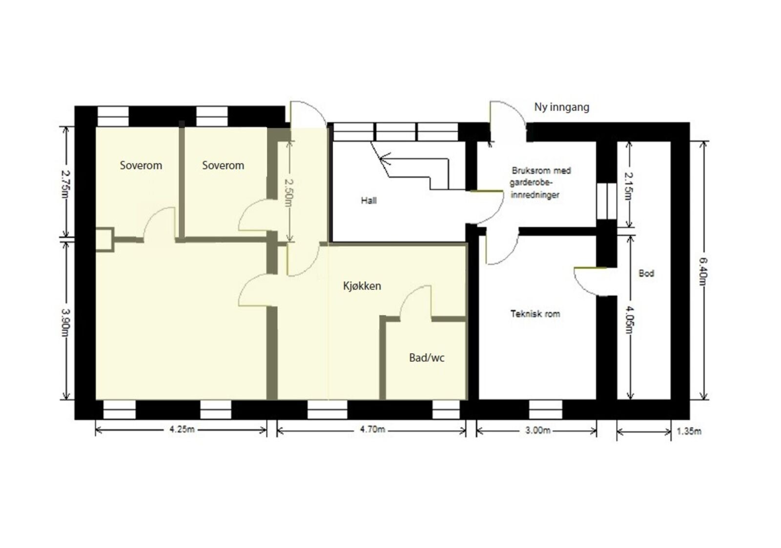
Sjelden anledning og fantastisk utsikt! Tegnet av ark. Hamran & Johansen og fullstendig ombygget i 2018, er dette et hjem hvor arkitektur og landskap smelter sammen. Fasaden er kledd i malmfuru, som gir en varm og naturlig karakter, og de gjennomgående glassflatene er et signaturgrep som åpner huset mot omgivelsene. Lys og utsikt trekkes inn og orienteringen gir sol fra morgen til kveld.
Innvendig er huset åpent, intuitivt og skapt for både familieliv og sosiale anledninger. Utstrakt bruk av eksklusive materialer og tilpassede løsninger. Tre innholdsrike etasjer, og øverst en masteravdeling med utgang til skjermet takterrasse med pergola; fantastisk utsikt over by og fjord.
Flere solfylte uteplasser, romslig hage med plass til lek, en fleksibel underetasje og godt med lagring. Enkel parkering i carport eller på gårdsplass.
- Kontakt megler
-
Visningsdatoer
Visningsdatoer
søndag 19. april kl 12:30 - 13:15
mandag 20. april kl 19:15 - 20:00
Meld deg på visning - Se 54 Bilder
- Se video
Bilder
Meglere
Jar
-
Arkitektdrøm! Stor enebolig fullstendig ombygget 2018 260 m²
- Bjerkelundsveien 48B, Grav/Jar, Jar
- 6 Soverom
- 3 Bad
29 500 000 + omk.
PrivatMegleren Dyve & Partnere
-
Arkitekttegnede eneboliger med hybel 0 m²
- Ringstabekkveien 69, Jar
- 5 Soverom
- 3 Bad
23 800 000 + omk.
PrivatMegleren Dyve & Partnere
-
Flott, innholdsrikt funkis med solrike uteplasser og hybel 345 m²
- Oreligrenda 3, Grav/Jar, Jar
- 4 Soverom
- 3 Bad
24 900 000 + omk.
PrivatMegleren Dyve & Partnere
-
Klassisk og flott villa på solrik høyde med et fantastisk uteareal 334 m²
- Midgarveien 10A, Jar
- 4 Soverom
- 2 Bad
25 900 000 + omk.
PrivatMegleren Dyve & Partnere